// Richtig wohnen, besser leben.
Innenausbau individuell bemustern und bis Sommer 2026 schlüsselfertig im neuen Zuhause wohnen? Jetzt anfragen und die letzte freie Hälfte sichern.
Diese attraktiven und schlüsselfertigen Wohnhaushälften entstehen im Neubaugebiet „Acht“ in Föhren. Jede einzelne Hälfte besticht durch seine funktionale Grundrisslösung und die optimale Nutzbarkeit für die junge Familien oder Paare jeglichen Alters. Die damit einhergehende, moderne Architektur in Verbindung mit zurückhaltender Eleganz sowie lichtdurchfluteten Räumen runden das Angebot ab.
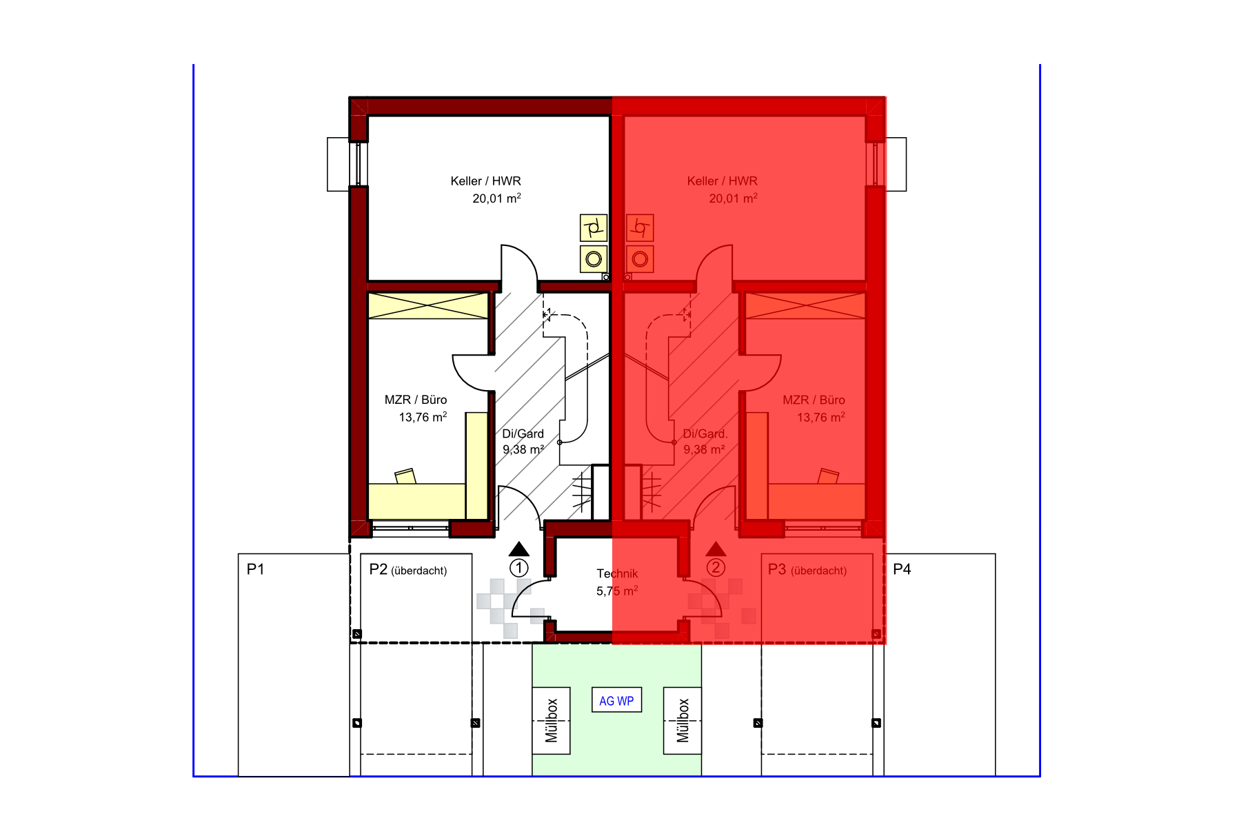
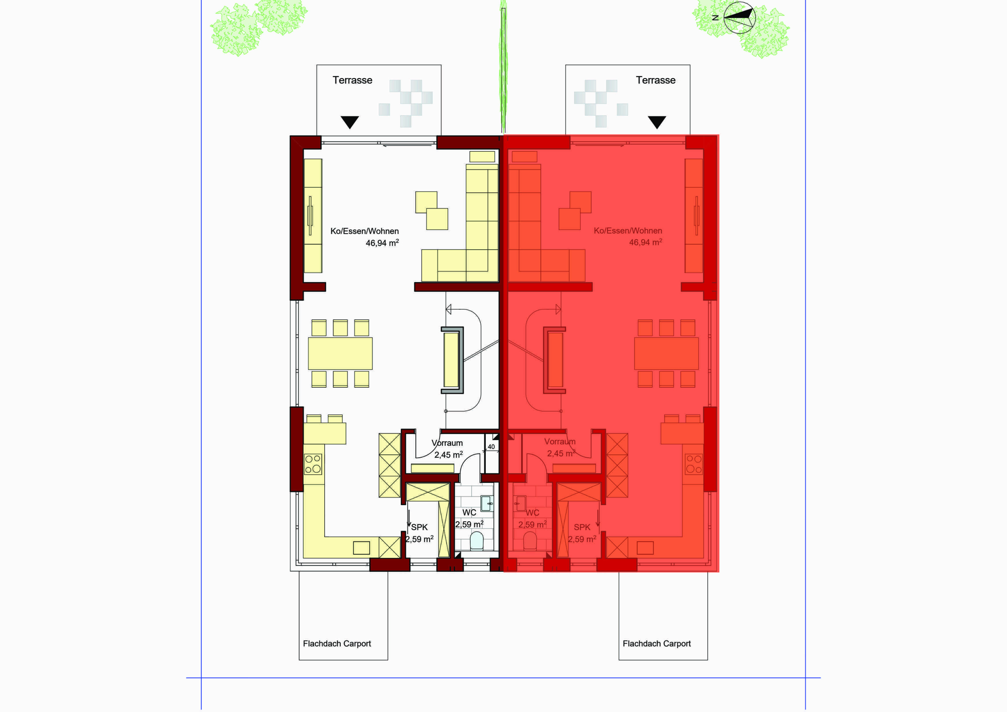
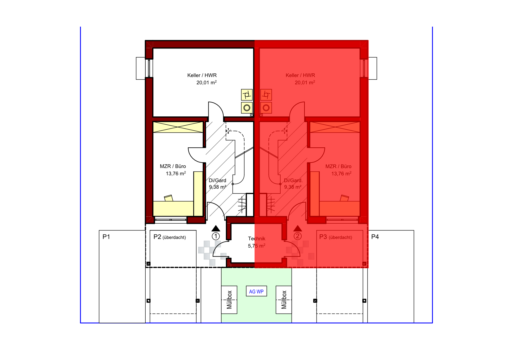
Im Untergeschoss befindet sich der Eingangsbereich nebst Diele, Mehrzweckzimmer / Büro sowie ein Keller- oder Hauswirtschaftsraum. Eine offene Treppe führt zum Erdgeschoss in welchem sich die Küche nebst Essbereich sowie Speisekammer, der Wohnbereich mit Zugang zur Terrasse/Garten und ein Vorratsraum / Gäste WC befindet. Das Dachgeschoss bietet insgesamt 3 Zimmer zur flexiblen Nutzung (Schlafen/Kind/Büro/Hobby) sowie das Badezimmer mit Wanne und Dusche.
Geplant ist der Einbau einer modernen Heizungsanlage mit Wärmepumpe in Verbindung mit Fußbodenheizung in allen Wohnräumen. Dezentrale Lüftungsanlagen mit Wärmerückgewinnung erhöhen den Wohnkomfort.
Die Rohbauarbeiten inkl. Dach und Fenster sind bereits abgeschlossen. Fertigstellung bis Sommer 2026.
Gerne bieten wir Ihnen einen Besichtigungs- und Beratungstermin vor Ort an.
Object: EH5950_1_links
// Errichtung als Effizienzhaus (keine KfW Förderung)
// Fußbodenheizung in Verbindung mit Wärmepumpe
// dezentrale Lüftungsanlage
// Terrasse und Garten
// Keller bzw. HWR
// Gäste WC
// Abstellraum o. Speisekammer
// Carport und Außenstellplatz
// SAT und Glasfaser
